Apartamento Padrão
Não informado
| Valor | Locação | Condomínio | IPTU | Área | Quartos | Suítes | WC | Vagas |
|---|---|---|---|---|---|---|---|---|
| R$ 700.000,00 | (consultar) | R$ 530 | (consultar) | 110.00 m² | 2 | --- | 1 | 1 |
Apartamento Padrão
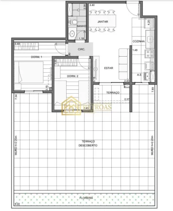
Apartamento Garden à Venda no Condomínio Living Magic - Rudge Ramos, São Bernardo do Campo Não perca esta oportunidade de adquirir um ótimo apartamento garden no desejado condomínio Living Magic, localizado no bairro Rudge Ramos. Características do Imóvel: - 2 quartos amplos - 1 banheiro - 1 vaga de garagem - Ambientes espaçosos com conceito aberto - Quintal privativo - Cozinha integrada à área de serviços Lazer e Infraestrutura do Condomínio: O Living Magic oferece diversas opções de lazer para toda a família, incluindo: - Brinquedoteca - Churrasqueira condominial - Elevador e elevador de serviço - Espaço gourmet - Jardim - Piscina coletiva e piscina infantil - Playground - Portaria 24 horas - Quadra de esportes - Sala fitness - Salão de festas Localização Privilegiada: Com fácil acesso à Rodovia Anchieta e à Avenida Guido Aliberti, você estará bem conectado a toda a região. Imagine morar no coração de São Bernardo do Campo, em um bairro com acesso fácil às principais avenidas da região, como a Anchieta e a Bandeirantes. Morar no Rudge Ramos é viver com conforto e qualidade de vida, estar próximo a parques como o Catarina Scarparo D’Agostini e o Salvador Arena, perfeitos para relaxar e praticar atividades físicas ao ar livre. Viver aqui é ter o privilégio de viver em uma região com ampla infraestrutura e diversas opções de comércio e lazer, e estar ao lado de diversos hospitais e clínicas renomados, como o Hospital e Maternidade Assunção. Agende sua visita e venha conhecer seu novo lar! Entre em contato para mais informações ou agendar uma visita! Conte a Imobiliária As Patroas do ABC. Nosso compromisso é superar suas expectativas e tornar sua jornada conosco uma experiência excepcional. Sinta-se em casa com a equipe da Imobiliárias As Patroas do ABC, onde você é a nossa prioridade. Baseamos nosso atendimento em valores de humanização, ética e transparência, garantindo segurança administrativa, jurídica e financeira. Somos uma Imobiliária em São Bernardo do Campo. CRECI: 44967-J
Creci: 44697J
Evite cair em golpes: Nunca faça depósitos, transferências ou qualquer pagamento sem conferência e/ou visita no imóvel.
Características
As Patroas do ABC