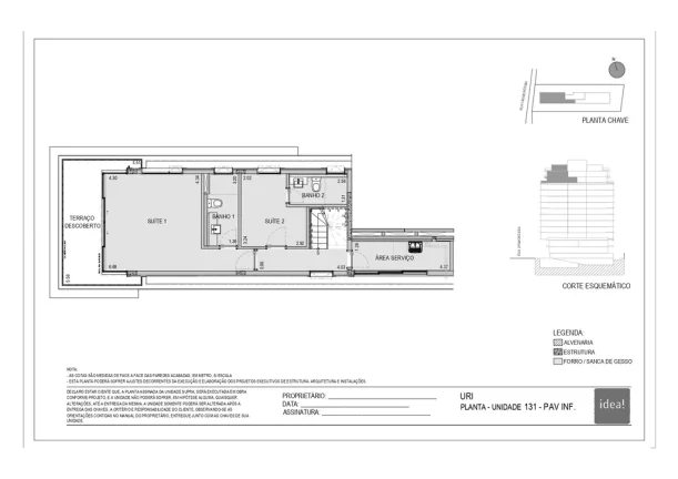
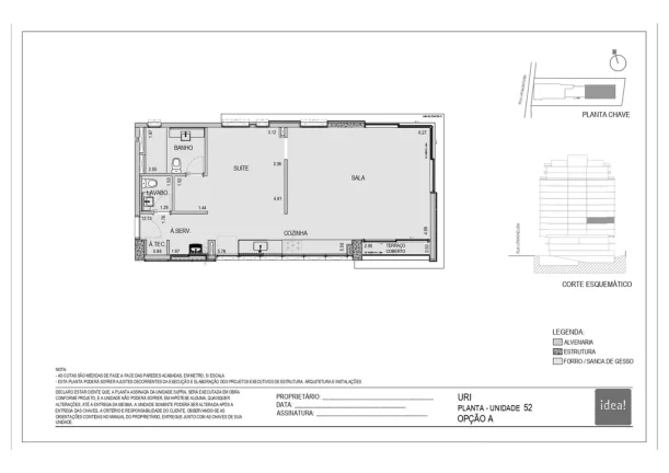
Apartamento com 1 Quarto à Venda, 79 m² em Itaim Bibi - São Paulo
Rua Urimonduba, 89 Itaim Bibi, São Paulo - SP
| Valor | Locação | Condomínio | IPTU | Área | Quartos | Suítes | WC | Vagas | 
|---|---|---|---|---|---|---|---|---|
| R$ 1.899.000,00 | (consultar) | (consultar) | (consultar) | 79 m² | 1 | 1 | 2 | 1 | 
Apartamento à venda no bairro Itaim Bibi São PauloSP
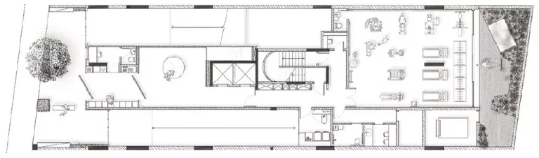
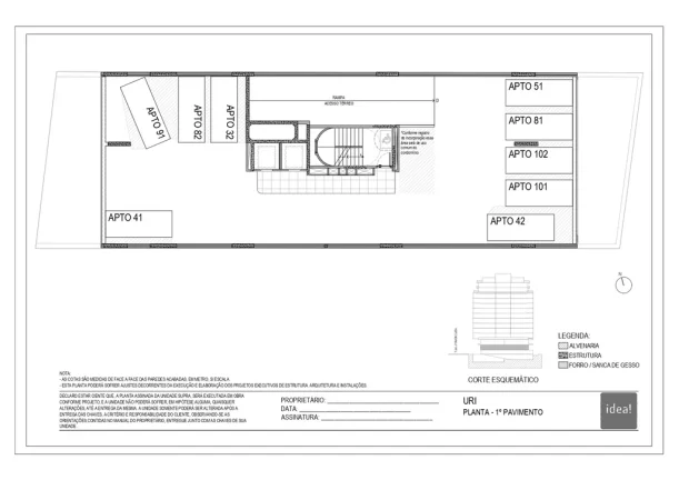
O edificio traz uma estetica elegante e atemporal para a paisagem do bairro. Seus apartamentos tem grandes janelas ambientes integrados e otima entrada de luz alem das opcoes Garden e cobertura com plantas dificeis de encontrar na regiao. O Uri esta localizado em uma rua tranquila ao lado de tudo de melhor que o bairro tem para oferecer. O Itaim e um dos lugares mais efervescentes de Sao Paulo e abriga hoje alguns dos restaurantes mais desejados o Shopping JK Iguatemi o Museu da Casa Brasileira e o Parque do Povo alem de estar no coracao do maior centro financeiro do pais. Um bairro povoado por muitos predios mas ate a chegada do Uri carente em valor arquitetonico. Preco e disponibilidade do imovel sujeitos a alteracao sem aviso previo.
Chave do anúncio: CiZJfGcV9TUXQskJ
Creci: 206306
Evite cair em golpes: Nunca faça depósitos, transferências ou qualquer pagamento sem conferência e/ou visita no imóvel.
Características
                            Rodrigo Abreu